Leżajsk - do sprzedaży dom drewniany na działce 0,1180 ha
Leżajsk Pokaż na mapie ›
Odświeżone: Środa, 18 Luty, 2026 16:18
233 000 zł
3329 zł/m2
Szczegóły ogłoszenia
- Kategoria: Domy / Sprzedaż
- Powierzchnia:70 m2
- Liczba pokoi:3 pokoje
- Pow. działki:1180 m2
- Rynek:Wtórny
- Rok budowy:1962
- Stan:Do gruntownego remontu
- Forma kuchni:Oddzielna
- Typ domu:Bliźniak
- Sprzedaż:Bez pośredników
- Inf. dodatkowe:Pom. użytkowe, Piwnica, Garaż
- Cena: 233 000 zł / 3329 zł/m2
- Ulica: Borki
Opis oferty
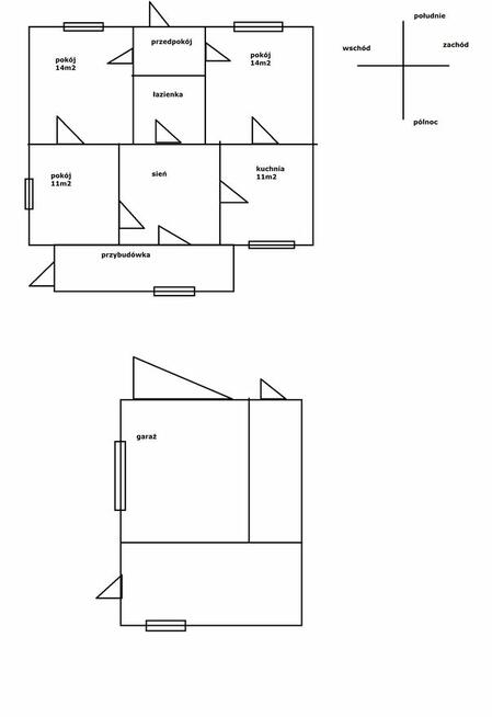
Oferuję do sprzedaży dom drewniany w zabudowie bliźniaczej o wymiarach 10m x 7,8mmieszczący się w Leżajsku, w cichej, spokojnej okolicy.
Budynek składa się z:
3 pokoi (14m2, 14m2, 11m2), kuchni (11m2), łazienki, dużej sieni (przedpokój), przedsionka od frontu, z tyłu przybudówka do rozbiórki.
Budynek posiada dwa wejścia od frontu i tyłu.
Budynek posiada również piwnicę z kamienia (pod pokojem i sienią) oraz strych z możliwością adaptacji.
Wystawa domu północ-południe-wschód.
WAŻNE INFORMACJE O NIERUCHOMOŚCI:
- rok budowy: przełom lat 50/60 dwudziestego wieku
- jeden właściciel
- założona księga wieczysta
- bez zadłużenia
- pokrycie dachu na domu: dachówka
- stan: do remontu
- źródło ciepła: piece kaflowe
- instalacja elektryczna starego typu
- media doprowadzone do budynku: woda, prąd, gaz, możliwość przyłączenia do kanalizacji miejskiej
- duży ogród, działka zadbana, uporządkowana, na działce drzewa owocowe (pigwowiec, orzech, grusza, jabłonie), od tyłu graniczy z uregulowanym strumykiem
DODATKOWA ZABUDOWA:
- garaż (posiada kanał samochodowy) z pomieszczeniami gospodarczymi o wymiarach 5,1x8,3m; budynek z cegły, kryty eternitem
DZIAŁKA:
- 0,1180 ha
POŁOŻENIE:
- działka położona w cichej, spokojnej okolicy, mały ruch samochodowy
- w pobliżu Klasztor oo . Bernardynów (1,2 km pieszo), szkoła podstawowa (900 m pieszo) i sklepy (duży dyskont spożywczy 350m pieszo)
Sprawdź zainteresowanie tym ogłoszeniem
Wyświetlenia
Data dodania
Ostatnio widziany
Obserwujących
Wysłane zapytania
Odsłony telefonu
Powiadom o podobnych ogłoszeniach
Lokalizacja: Leżajsk
Kategoria: Nieruchomości » Domy » Sprzedaż
Cena: od 198000 zł do 268000 zł Powierzchnia : od 60 m2 do 81 m2
Chcę otrzymywać powiadomienia o nowych ofertach
Felicja
Konto prywatne
Na Lento.pl od 02 paź 2024
Strona użytkownika
- Wypromuj ogłoszenie
- Zgłoś naruszenie
- Drukuj ulotkę
- Edytuj/usuń ogłoszenie
- Udostępnij ogłoszenie
- Dodaj na Facebook































